我的购物车
静宜双级耐水耐酸碱真空泵

静宜双级耐水耐酸碱真空泵

双级耐水真空泵,油不乳化。耐酸碱。
市 场 价 
¥20000.00
价  格 
14000.00
  • 销  量 
    0
  • 累计评价 
    0
  • 商品评分 
数  量 
- +    (库存:0 台)
服  务 
服务由 静宜真空 发货并提供 售后服务。
静宜真空
店主:杨丹
联系: QQ交谈
地址:天津市北辰区津围公路东
描述
5
服务
5
物流
5
猜你喜欢
GID型系列电动高真空蝶阀
¥1150.00¥2200.00
气动真空蝶阀
¥640.00¥1135.00
高真空球阀
¥180.00¥280.00
热销商品
普发真空泵油A120
¥1400.00¥1500.00
莱宝真空泵SV300BSV200SV100B
¥31000.00¥48800.00
莱宝SV100B真空泵
¥11890.00¥15846.00
  • 商品介绍
  • 商品评价(0)
  • 商品咨询
  • 手机购买

    扫码访问商品

  • 立即购买

静宜真空耐水耐酸碱双级真空泵DW系列

DW16 DW8 DW30 DW40 DW60 DW90


在冻干,实验室,真空干燥等环境,耐水,耐酸碱,耐腐蚀。可以不用使用冷水机,冰水机除水。同时可以耐酸碱,耐化学试剂。


技术参数:


技术指标

单位

型号



DW 8

DW 16

DW 30

DW 40

DW 60

DW 90

抽速(50Hz)

m3/h

8

18

36

48

65

90

抽速(60Hz)

m3/h

9.6

21.6

43

57

78


关气镇极限分压强

mbar

4x10-3

4x10-3

4x10-3

4x10-3

4x10-3

4x10-3

关气镇极限总压强1

mbar

3x10-2

3x10-2

3x10-2

3x10-2

3x10-2

3x10-2

开气镇极限总压强1

mbar

6x10-2

6x10-2

6x10-2

6x10-2

6x10-2

6x10-2

水蒸汽允许压强

mbar

30

20

40

30

30

30

连接口(进气口/排气口)

DN(mm)

KF25

KF25

KF40

KF40

KF40

KF40

噪音(当气镇关/开时,距离1米处声压电平值)2

db

54/56

55/58

58/60

58/60

58/60

58/60

注油量(最大/最小)

L

1.0/0.7

1.5/1

3.8/3.3

5/4.6

5/4.6

5/4.6

重量(未注油)

Kg

27

31

69

82

80

80

工作环境温度(最低/最高)

°C

5/40

5/40

5/40

5/40

5/40

5/40

电机功率(单相,220V,50Hz)

W

550

750




电机功率(三相,380V,50Hz)

W

550

550

1500

1500

2200

2200

泵总长度

mm

471

560




泵总长度

mm

500

540

661

765

765

765

产品编码


61108单相

61208三相

61116单相

61216三相

61231

61241

61261

61291











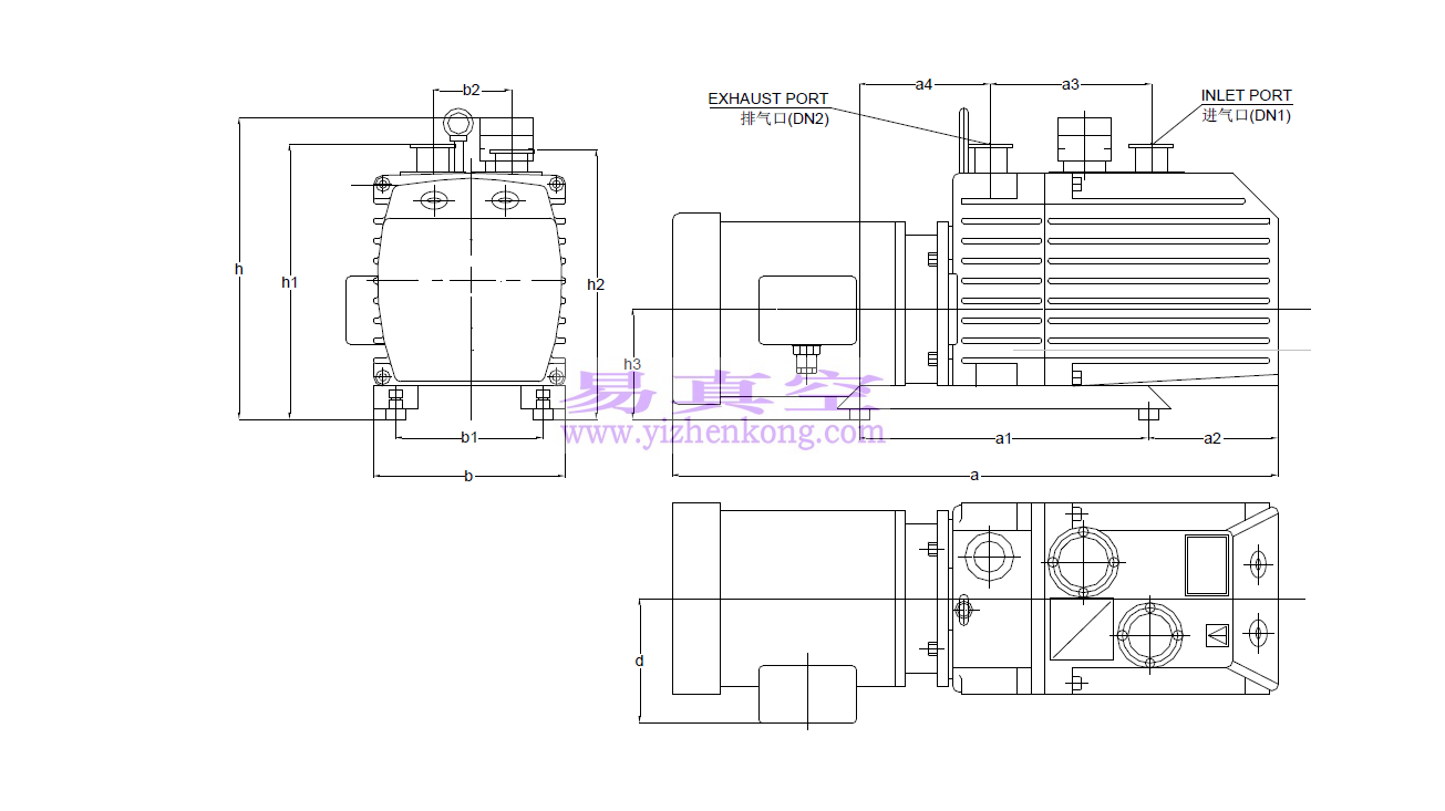
单位:mm

Model

DN1

DN2

a

a1

a2

a3

a4

b

b1

b2

h

h1

h2

h3

d

DW 8

KF25

KF25

500

260

75

146

118

173

133

71

272

243

246

100

160

DW 16

KF25

KF25

540

260

117

146

118

173

133

71

272

243

246

100

160

DW 30

40KF

40KF

661

395

123

224

185

242

192

90

370

358

362

166

153

DW 40

40KF

40KF

765

395

198

224

185

242

192

90

370

358

362

166

153

DW 60

40KF

40KF

765

395

198

224

185

242

192

90

370

358

362

166

153

DW 90

40KF

40KF

765

395

198

224

185

242

192

90

370

358

362

166

153


图3:DW泵体外形尺寸图


DW系列真空泵,是最佳含水环境真空泵,可以免用冷水机,冰水机除水。




















对比栏关闭
购物车
我的足迹